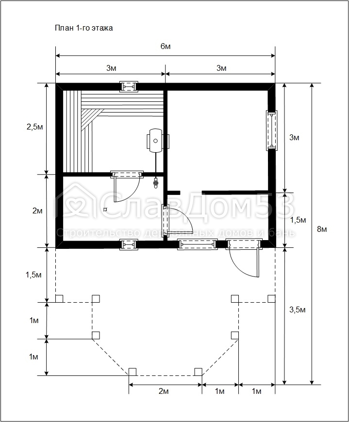
Баня Б-15 6х8м Элит
Место строительства:
Николины Озёра, Наро-Фоминск, МСК обл
Описание:

При строительстве Бани мы еще изготовили хозпостройку и дровяник.

Заказать звонок

Заказать строительство

Напишите нам в эту форму, если Вы хотите оформить заказ на строительство по этому проекту, или если у Вас есть какой либо вопрос.

Также Вы можете позвонить нам по телефону:
+7 (996) 777-15-69, +7 (921) 706-00-28

Отправить проект

Если у вас есть свой проект или эскиз дома или бани, или Вы увидели интересный проект на другом сайте, Вы можете отправить его нам на расчет стоимости строительства. Для этого заполните форму ниже. Укажите максимум  информации, чтобы расчет был более точным. После расчета (1-2 дня) наш менеджер свяжется с Вами.

Максимальный размер файла: 2 МБ.
Разрешённые типы файлов: gif jpg jpeg png bmp eps tif pict psd pdf doc docx xls xlsx.
Максимальный размер файла: 2 МБ.
Разрешённые типы файлов: gif jpg jpeg png bmp eps tif pict psd rtf pdf doc docx xls xlsx.
Максимальный размер файла: 2 МБ.
Разрешённые типы файлов: gif jpg jpeg png bmp eps tif pict psd rtf pdf doc docx xls xlsx.

Если Вы загружаете свой проект, не
забудьте нажать кнопку «Закачать»,
иначе мы не получим файл