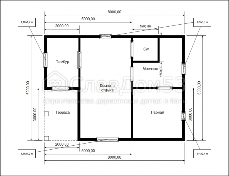
Баня Б-29 6х8м «под усадку»
Место строительства:
д. Большое Петровское, Чехов, мск обл
Описание:

Меня часто спрашивают, как выглядит комплектация «под усадку»

Не так давно мы построили баню из бруса 150х150 в такой комплектации

Строительство осуществлялось деревне Большое Петровское, Чеховский район, Московской области 

Ваша строительная компания СлавДом53

Заказать звонок

Заказать строительство

Напишите нам в эту форму, если Вы хотите оформить заказ на строительство по этому проекту, или если у Вас есть какой либо вопрос.

Также Вы можете позвонить нам по телефону:
+7 (996) 777-15-69, +7 (921) 706-00-28

Отправить проект

Если у вас есть свой проект или эскиз дома или бани, или Вы увидели интересный проект на другом сайте, Вы можете отправить его нам на расчет стоимости строительства. Для этого заполните форму ниже. Укажите максимум  информации, чтобы расчет был более точным. После расчета (1-2 дня) наш менеджер свяжется с Вами.

Максимальный размер файла: 2 МБ.
Разрешённые типы файлов: gif jpg jpeg png bmp eps tif pict psd pdf doc docx xls xlsx.
Максимальный размер файла: 2 МБ.
Разрешённые типы файлов: gif jpg jpeg png bmp eps tif pict psd rtf pdf doc docx xls xlsx.
Максимальный размер файла: 2 МБ.
Разрешённые типы файлов: gif jpg jpeg png bmp eps tif pict psd rtf pdf doc docx xls xlsx.

Если Вы загружаете свой проект, не
забудьте нажать кнопку «Закачать»,
иначе мы не получим файл