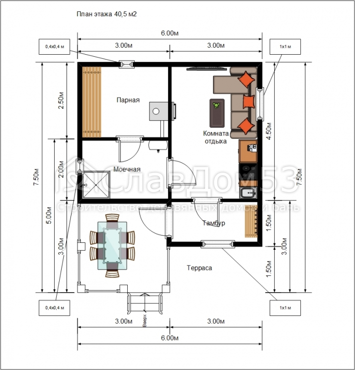
Проект БК-14. Каркасная баня 6х7,5м

Сообщение об ошибке

  • Notice: Trying to get property of non-object в функции am_gal_panels_pane_content_alter() (строка 168 в файле /var/www/slavdom53/data/www/slavdom53.ru/sites/all/modules/am_gal/am_gal.module).
  • Notice: Trying to get property of non-object в функции am_gal_panels_pane_content_alter() (строка 168 в файле /var/www/slavdom53/data/www/slavdom53.ru/sites/all/modules/am_gal/am_gal.module).
  • Notice: Trying to get property of non-object в функции am_gal_panels_pane_content_alter() (строка 168 в файле /var/www/slavdom53/data/www/slavdom53.ru/sites/all/modules/am_gal/am_gal.module).
  • Notice: Trying to get property of non-object в функции am_gal_panels_pane_content_alter() (строка 168 в файле /var/www/slavdom53/data/www/slavdom53.ru/sites/all/modules/am_gal/am_gal.module).
  • Notice: Trying to get property of non-object в функции am_gal_panels_pane_content_alter() (строка 168 в файле /var/www/slavdom53/data/www/slavdom53.ru/sites/all/modules/am_gal/am_gal.module).
  • Notice: Trying to get property of non-object в функции am_gal_panels_pane_content_alter() (строка 168 в файле /var/www/slavdom53/data/www/slavdom53.ru/sites/all/modules/am_gal/am_gal.module).
  • Notice: Trying to get property of non-object в функции am_gal_panels_pane_content_alter() (строка 168 в файле /var/www/slavdom53/data/www/slavdom53.ru/sites/all/modules/am_gal/am_gal.module).
Размер:
6х7,5 м
Общая площадь:
45 м²
Количество этажей:
Одноэтажный
Срок строительства:
10-12 дней
Цена «Под ключ»
Каркас 100 мм.
По запросу
Каркас 150 мм.
1 015 000 руб.
Описание комплектации
Фундамент

Не входит в стоимость

Основание

Двойная, первый ряд нестроганый брус сечением 100х150 или 150х150мм (в зависимости от толщины стен) естественной влажности, второй контур из строганной доски сечением 38х140мм камерной сушки устанавливается на ребро

Лаги

Выполнены из строганной доски сечением 38х140мм камерной сушки, с шагом 600мм, установленными на ребро

Полы

Двойные, утепленные каменной ватой ROCKWOOL 100мм или 150мм (в зависимости от комплектации), сверх утеплителя, с нахлестом по контуру монтируется пароизоляция Наноизол В (или аналог):

- черновые: к половым лагам прибивается брусок сечением 40х50мм, на него кладется обрезная нестроганая доска первого сорта 20мм естественной влажности, по черновому полу с нахлестом устраивается пароизоляция Наноизол В (или аналог);

- чистовые: половая шпунтованная доска 28мм, камерной сушки.

Первый этаж

Высота потолков 2,15-2,25м.

Стены

Каркас из обрезной строганной доски сечением 38х90мм или 38х140мм камерной сушки (в зависимости от слоя утепления). Утепление каменной ватой ROCKWOOL.

С внутренней стороны обшиты вагонкой класса «Б» камерной сушки предварительно с нахлестом по контуру монтируется пароизоляция Наноизол В (или аналог).

С наружной стороны обшиты имитацией бруса с прокладкой ветро-влагозащиты Наноизол А (или аналог) через контррейка 20х40мм.

Перегородки

Каркас из обрезной строганной доски сечением 38х90мм камерной сушки, с наружной и внутренней стороны обшиты вагонкой класса «Б» камерной сушки, с прокладкой пароизоляция Наноизол В (или аналог). Утепление каменной ватой ROCKWOOL.

Потолки

Подшиваются вагонкой камерной сушки класса «Б», утепление каменной ватой ROCKWOOL 100мм или 150мм (в зависимости от комплектации), пароизоляция Наноизол В (или аналог), гвозди для отделки оцинкованные, углы внутренних помещений отделаны плинтусом.

Перекрытия

Обрезная нестроганая доска сечением 40х150мм естественной влажности, с шагом 800мм, установленными на ребро

Крыша

Двухскатная (прямая, ломанная или вальмовая в зависимости от проекта)

Покрытие кровли

Ондулин цвет на выбор (коричневого, зеленого, красного или графитового цвета)

Стропильная система

Каркас из нестроганой доски сечением 40х100мм естественной влажности

Обрешетка

Обрешетка монтируется из обрезных нестроганых досок первого сорта толщиной 20мм с шагом 400мм. Предварительно укладывается подкровельная пленка Изоспан D с нахлестом, проходящая через контробрешетку.

Выносы крыши

По периметру 20-30см, подшиты вагонкой камерной сушки класса «Б»

Фронтоны

Обшиты горизонтально имитацией бруса

Наружные углы

Обшиваются вертикально вагонкой камерной сушки

Моечное отделение

Устанавливается душевой поддон 800х800мм или делаются полы под наклоном с установкой сливного трапа, в полы засыпается керамзит

Парное отделение

Стены и потолок обшиваются вагонкой из осины класса «А» (стыкованная), предварительно под вагонку по периметру всех стен и потолка прокладывается фольгированная кашированная бумага, устанавливаются прямые двухъярусные полки из строганной осины класса «А»

Печь

Производится установка банной печи «Ермак 16 Классик», включающая следующие компоненты: дымоход, проходящий через кровельное покрытие, сэндвич-трубы, кирпичную облицовку печного проёма, выносной бак объемом 60 литров, ППУ и экран с отражающей поверхностью.

Плинтус

На стыки стен, пола и потолка устанавливается плинтус из хвойный пород дерева

В банях, в парном отделении, устанавливается плинтус из осины

Окна

Деревянные однокамерные с фурнитурой, отделаны наличником (имитация стеклопакета)

Двери

Входная металлическая (производитель Россия), межкомнатные деревянные филенчатые и банные деревянные клиновые.

Все двери отделаны наличником.

Доставка

Бесплатно 500 км. от города Пестово Новгородской обл., далее за перепробег по 150 рублей за 1 км.

Сборка

Входит в стоимость

Ваш путь к готовому дому или бане
Шаг 1. Определите ваши пожелания
Выберите проект из каталога или определите
для себя желаемый размер, планировку и
бюджет.
Шаг 2. Оставьте заявку
Свяжитесь с нами удобным для вас способом,
указав выбранный проект и желаемую
комплектацию.
Шаг 3. Бесплатная консультация
Обсудим все пожелания, при необходимости
бесплатно доработаем планировку и
адаптируем проект под вас.
Шаг 4. Точный расчет стоимости
Составляем техническое задание и
озвучиваем точную стоимость строительства
без каких-либо скрытых расходов.
Шаг 5. Заключение договора
Согласовываем официальный договор, в котором
фиксируем все важные аспекты: цену, сроки,
гарантии и прочие детали.
Шаг 6. Подготовка к строительству
Мы заготавливаем стройматериалы, проверяем их
качество, комплектуем машину и готовимся
выезжать к вам.
Шаг 7. Выезд на ваш участок
Согласовываем дату заезда. В назначенный
день на участок доставляется весь комплект
материалов и строительная бригада.
Шаг 8. Сборка строения
Мастера собирают объект по техническому
заданию. По желанию присылаем
фотоотчеты о ходе работ.
Шаг 9. Прием готового объекта
Вместе осматриваем готовое строение,
проверяем качество. Если все в порядке,
подписываем акт.
Шаг 10. Официальная гарантия
Мы предоставляем официальную гарантию на
материалы и работы. Теперь вы можете
наслаждаться своим новым домом или баней.
Шаг 11. Постоянная поддержка
Мы остаемся на связи и после сдачи объекта. Если возникнут
вопросы по эксплуатации — смело обращайтесь!

Дополнительные услуги

Свайно-винтовой фундамент по запросу
Установка однокамерного деревянного окна 1х1,20м 6 000 руб
Установка железной двери (2070×670мм) 12 000 руб
Замена деревянного однокамерного окна размером 1х1,20м на пластиковое однокамерное окно размером 1х1,20м 5 000 руб
Замена деревянного однокамерного окна размером 0,4х0,4м на пластиковое однокамерное окно размером 0,5х0,5м 4 000 руб
Замена кровли на металлочерепицу по запросу
Работы (без учёта материала) по обработке / покраске фасадов дома 600 руб/м2
Аренда генератора

Бензин предоставляет Заказчик

15 000 руб
Спросить в МАХ или VK

Заказать звонок

Заказать строительство

Напишите нам в эту форму, если Вы хотите оформить заказ на строительство по этому проекту, или если у Вас есть какой либо вопрос.

Также Вы можете позвонить нам по телефону:
+7 (996) 777-15-69, +7 (921) 706-00-28

Отправить проект

Если у вас есть свой проект или эскиз дома или бани, или Вы увидели интересный проект на другом сайте, Вы можете отправить его нам на расчет стоимости строительства. Для этого заполните форму ниже. Укажите максимум  информации, чтобы расчет был более точным. После расчета (1-2 дня) наш менеджер свяжется с Вами.

Максимальный размер файла: 2 МБ.
Разрешённые типы файлов: gif jpg jpeg png bmp eps tif pict psd pdf doc docx xls xlsx.
Максимальный размер файла: 2 МБ.
Разрешённые типы файлов: gif jpg jpeg png bmp eps tif pict psd rtf pdf doc docx xls xlsx.
Максимальный размер файла: 2 МБ.
Разрешённые типы файлов: gif jpg jpeg png bmp eps tif pict psd rtf pdf doc docx xls xlsx.

Если Вы загружаете свой проект, не
забудьте нажать кнопку «Закачать»,
иначе мы не получим файл