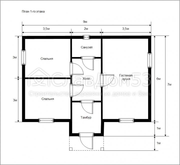
Проект Д-24. Дом из бруса 7х9м

Сообщение об ошибке

Notice: Trying to get property of non-object в функции am_gal_panels_pane_content_alter() (строка 168 в файле /var/www/slavdom53/data/www/slavdom53.ru/sites/all/modules/am_gal/am_gal.module).
Цена дома «Под усадку»
780 000 руб.
Проф. брус 100×150
866 000 руб.
Проф. брус 150×150
Цена дома «Под ключ»
1 096 000 руб.
Проф. брус 100×150
1 200 000 руб.
Проф. брус 150×150

Фотоотчеты по этому проекту

Заокский район Тульская область
Деревня Авдотьино, Богородский район, Московская область

Видеообзоры по этому проекту

Описание комплектаций
Фундамент

Не входит в стоимость

Основание

Двойная обвязка - 2 ряда основания из нестроганного бруса сечением 100х150мм или 150х150мм (в зависимости от толщины стен), естественной влажности.

Лаги

Выполнены из нестроганой доски сечением 40х150мм естественной влажности, с шагом 600мм, установленными на ребро

Первый этаж

Высота потолков 2,25-2,35м (17 венцов).

Стены 1 этажа

Строганный профилированный брус 100х150 (в чистоте 90×140мм) или 150х150 (в чистоте 140×140мм) естественной влажности с наружной стороны прямой или под "блок-хаус", с внутренней стороны прямой, между брусом прокладывается джутовое полотно. Сборка углов производится в "теплый угол" (шип-паз), межвенцовое соединение производится на деревянный нагель

Перегородки 1 этажа

Строганный прямой профилированный брус 100х150 (в чистоте 90х140мм) естественной влажности, межвенцовое соединение производится на деревянный нагель.

Перекрытия

Обрезная нестроганая доска сечением 40х150мм естественной влажности, с шагом 800мм, установленными на ребро

Крыша

Двухскатная (прямая, ломанная или вальмовая в зависимости от проекта)

Покрытие кровли

Ондулин цвет на выбор (коричневого, зеленого, красного или графитового цвета)

Стропильная система

Каркас из нестроганой доски сечением 40х100мм естественной влажности

Обрешетка

Не сплошная, из обрезной нестроганой доски толщиной 20мм, с шагом 400мм

Вынос крыши

По периметру 30-40см, подшиты вагонкой естественной влажности.

Фронтоны

Обшиты горизонтально вагонкой камерной сушки

Доставка

Бесплатно 500 км от г. Пестово Новгородской обл., далее 150 рублей за 1км

Сборка

Входит в стоимость

Фундамент

Не входит в стоимость

Основание

Двойная обвязка - 2 ряда основания из нестроганного бруса сечением 100х150мм или 150х150мм (в зависимости от толщины стен), естественной влажности.

Лаги

Выполнены из нестроганой доски сечением 40х150мм естественной влажности, с шагом 600мм, установленными на ребро

Полы 1 этаж

Двойные, утепление мин. ваты URSA (или аналог) 100мм, пароизоляция изоспан В
- черновые: обрезная доска 20мм первого сорта, естественной влажности
- чистовые: половая шпунтованная доска 28мм, камерной сушки

Первый этаж

Высота потолков 2,25-2,35м (17 венцов).

Стены 1 этажа

Строганный профилированный брус 100х150 (в чистоте 90×140мм) или 150х150 (в чистоте 140×140мм) естественной влажности с наружной стороны прямой или под "блок-хаус", с внутренней стороны прямой, между брусом прокладывается джутовое полотно. Сборка углов производится в "теплый угол" (шип-паз), межвенцовое соединение производится на деревянный нагель

Перегородки 1 этажа

Прямой строганный профилированный брус 100х150 (в чистоте 90х140мм) естественной влажности, между брусом прокладывается джутовое полотно, межвенцовое соединение производится на деревянный нагель.

Потолки

Подшиваются вагонкой класса «Б» камерной сушки, утепление мин. ваты URSA (или аналог) 100мм, предварительно под вагонку, с нахлестом по контуру монтируется пароизоляция Наноизол В (или аналог), гвозди для отделки оцинкованные

Перекрытия

Обрезная нестроганая доска сечением 40х150мм естественной влажности, с шагом 800мм, установленными на ребро

Стены 2 этаж

Каркас из нестроганой доски сечением 40х100мм естественной влажности, обшиты горизонтально вагонкой камерной сушки класса «Б», утепление мин. ваты URSA (или аналог) 100мм, предварительно под вагонку, с нахлестом по контуру монтируется пароизоляция Наноизол В (или аналог)

Крыша

Двухскатная (прямая, ломанная или вальмовая в зависимости от проекта)

Покрытие кровли

Ондулин цвет на выбор (коричневого, зеленого, красного или графитового цвета)

Стропильная система

Каркас из нестроганой доски сечением 40х100мм естественной влажности

Обрешетка

Не сплошная, из обрезной нестроганой доски толщиной 20мм, с шагом 400мм

Вынос крыши

По периметру 30-40см, подшиты вагонкой естественной влажности.

Фронтоны

Обшиты горизонтально вагонкой камерной сушки

Наружные углы

Обшиваются вертикально вагонкой камерной сушки

Плинтус

На стыки стен, пола и потолка устанавливается плинтус из хвойный пород дерева

В банях, в парном отделении, устанавливается плинтус из осины

Окна

Деревянные однокамерные с фурнитурой, отделаны наличником (имитация стеклопакета)

Двери

Входная металлическая (производитель Россия), межкомнатные филенчатые.

Доставка

Бесплатно 500 км от г. Пестово Новгородской обл., далее 150 рублей за 1км

Сборка

Входит в стоимость

Дополнительные услуги

Дополнительная опора столбчатого фундамента 800 руб
Свайно-винтовой фундамент по запросу
Дополнительный венец профилированного бруса по запросу
Дополнительная межкомнатная перегородка по запросу
Сборка сруба на деревянные нагеля от 3 000 руб за ряд
Сборка сруба на пружинный узел "Сила" по запросу
Угловое соединение «теплый угол» (шип-паз) от 3 000 руб за ряд
Установка водосточной системы по запросу
Дополнительное утепление минеральной ватой 50мм по запросу
Установка однокамерного деревянного окна 1х1,20м 6 000 руб
Установка железной двери (2070×670мм) 12 000 руб
Замена банной клиновой двери на стеклянную 9 000 руб
Замена деревянного однокамерного окна размером 1х1,20м на пластиковое однокамерное окно размером 1х1,20м 5 000 руб
Замена деревянного однокамерного окна размером 0,4х0,4м на пластиковое однокамерное окно размером 0,5х0,5м 4 000 руб
Монтаж металлических роек из уголка 40х40мм в оконный проем 1 500 руб
Монтаж металлических роек из уголка 40х40мм в дверной проем 3 000 руб
Замена кровли на металлочерепицу по запросу
Замена бруса естественной влажности на сухой (камерная сушка) по запросу
Работы (без учёта материала) по обработке / покраске фасадов дома 600 руб/м2
Строительная бытовка

Размер 2х3м

23 000 руб
Стол и лавка по запросу
Аренда генератора

Бензин предоставляет Заказчик

13 000 руб

Заказать звонок

Заказать строительство

Напишите нам в эту форму, если Вы хотите оформить заказ на строительство по этому проекту, или если у Вас есть какой либо вопрос.

Также Вы можете позвонить нам по телефону:
+7 (996) 777-15-69, +7 (921) 706-00-28

Отправить проект

Если у вас есть свой проект или эскиз дома или бани, или Вы увидели интересный проект на другом сайте, Вы можете отправить его нам на расчет стоимости строительства. Для этого заполните форму ниже. Укажите максимум  информации, чтобы расчет был более точным. После расчета (1-2 дня) наш менеджер свяжется с Вами.

Максимальный размер файла: 2 МБ.
Разрешённые типы файлов: gif jpg jpeg png bmp eps tif pict psd pdf doc docx xls xlsx.
Максимальный размер файла: 2 МБ.
Разрешённые типы файлов: gif jpg jpeg png bmp eps tif pict psd rtf pdf doc docx xls xlsx.
Максимальный размер файла: 2 МБ.
Разрешённые типы файлов: gif jpg jpeg png bmp eps tif pict psd rtf pdf doc docx xls xlsx.

Если Вы загружаете свой проект, не
забудьте нажать кнопку «Закачать»,
иначе мы не получим файл